Dự án thi công Bếp ăn Phòng chờ thương gia Vietnam Airlines, Nhà ga T3, Sân bay Tân Sơn Nhất, Hồ Chí Minh là một trong những dự án lớn được Quang Huy lên bản vẽ thiết kế và thi công hoàn thiện một không gian bếp hiện đại theo tiêu chuẩn quốc tế. Đây là công trình cam kết quy trình vận hành một chiều chuyên nghiệp, sẵn sàng phục vụ hàng ngàn suất ăn chất lượng cao trong môi trường kiểm soát nghiêm ngặt nhất.

Thông tin dự án
- Chủ đầu tư: Chị Thảo
- Hạng mục: Thiết kế, thi công lắp đặt thiết bị bếp sân bay
- Địa chỉ: Nhà ga T3, Sân bay Tân Sơn Nhất, Hồ Chí Minh
- Tổng diện tích lắp đặt: 60m2.
Giới thiệu về Nhà ga T3 Sân bay Tân Sơn Nhất
Nhà ga T3 Cảng hàng không Quốc tế Tân Sơn Nhất là một trong những dự án trọng điểm quốc gia, được xây dựng tại TP.HCM nhằm mục tiêu giảm tải áp lực lớn cho nhà ga T1 hiện hữu và nâng cao năng lực phục vụ hành khách nội địa. Với quy mô lớn, tổng diện tích sàn cực lớn và thiết kế hiện đại, T3 được kỳ vọng sẽ trở thành một công trình kiến trúc biểu tượng, có khả năng phục vụ khoảng 20 triệu lượt khách mỗi năm, góp phần quan trọng vào việc nâng cao chất lượng dịch vụ và trải nghiệm đi lại hàng không tại Việt Nam.

Thiết kế, cung cấp thiết bị bếp cho Bếp ăn thương gia Nhà ga T3
Quang Huy rất vinh dự và tự hào khi trở thành đơn vị thiết kế, thi công bếp ăn cho Bếp ăn thương gia Nhà ga T3 sân bay Tân Sơn Nhất. Việc đầu tư hệ thống bếp hiện đại là bước đi quan trọng nhằm nâng cao chất lượng bữa ăn và đảm bảo vệ sinh an toàn thực phẩm cho hành khách tại sân bay. Dự án được khởi động bằng giai đoạn thiết kế, nơi đội ngũ kỹ sư chuyên nghiệp phác thảo và hoàn thiện bản vẽ kỹ thuật chi tiết, đảm bảo tối ưu hóa không gian và quy trình vận hành.

Ngay sau khi bản vẽ được duyệt, chúng tôi tiến hành quy trình sản xuất thiết bị đồng bộ tại nhà máy. Đáng chú ý, toàn bộ chu trình từ khâu sản xuất, vận chuyển, thi công lắp đặt tại công trình cho đến khi nghiệm thu và bàn giao chỉ được gói gọn trong khoảng thời gian từ 15 đến 18 ngày. Đây là cam kết về tiến độ thần tốc, đảm bảo dự án đi vào hoạt động đúng kế hoạch đề ra, không làm gián đoạn kế hoạch kinh doanh của quý khách.
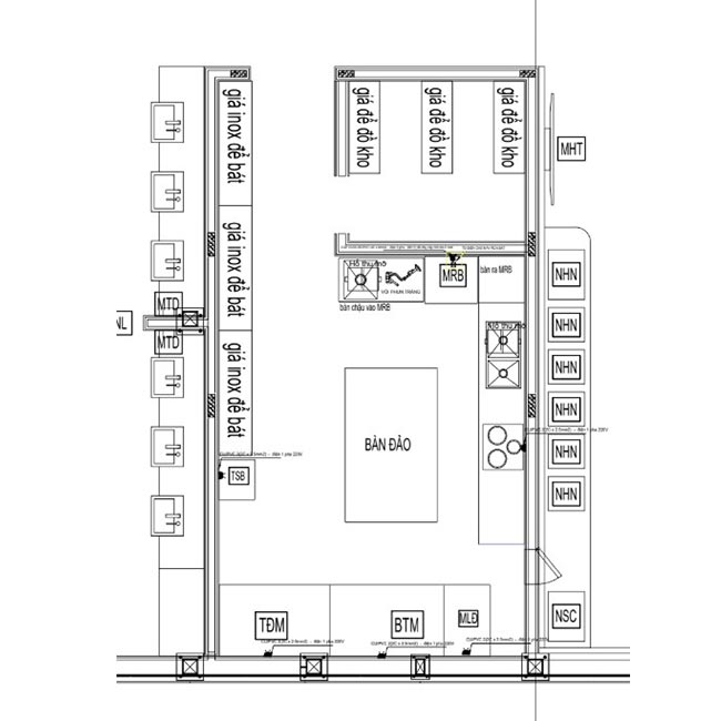
Khu Nấu
- Bếp á 2 họng
- Bếp xào điện từ
- Nồi nấu nước lèo
- Chậu rửa đôi
- Máy hút mùi
Khu dọn rửa
- Tủ sấy bát
- Máy rửa bát
- Chậu rửa
- Thùng rác di động
Khu chia thức ăn
- Bàn 2 kệ dưới
Khu lưu trữ
- Tủ mát 2 cánh
- Tủ đông 2 cánh
- Tủ mát bàn chặt
- Tủ 4 cánh inox để đồ khô
- Giá để kho
Hình ảnh quy trình thi công, lắp đặt








