Dự án thi công bếp Công ty Cổ phần PAVICO Việt Nam do Công ty TNHH Thiết bị bếp Việt Quang Huy triển khai đã hoàn thành ngày 15/10/2025 sau 14 ngày từ khi sản xuất đến thi công và bàn giao dự án. Với kinh nghiệm thực hiện nhiều công trình thực tế, Quang Huy đã tư vấn bố trí mặt bằng khoa học, cung cấp thiết bị phù hợp công suất và đảm bảo tiến độ thi công, góp phần xây dựng hệ thống bếp chuyên nghiệp, hiệu quả cho doanh nghiệp.

Thông tin dự án thi công bếp Công ty Cổ phần PAVICO Việt Nam
- Chủ đầu tư: Đỗ Trường Hải
- Hạng mục: Cung cấp thiết bị bếp
- Diện tích: 50m²
- Địa chỉ: Lô E1, KCN Trung Hà, Xã Dân Quyền, Huyện Tam Nông, Tỉnh Phú Thọ
- Phương án thi công: Bếp 1 chiều
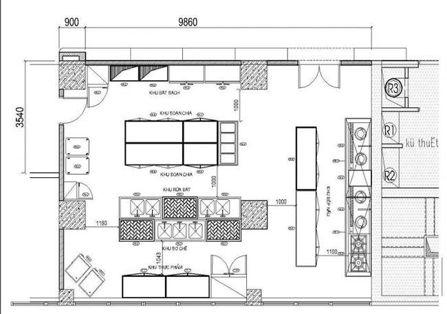
Phương án thi công và bản vẽ dự án
Thiết kế và lắp đặt thiết bị bếp ăn Công ty Cổ phần PAVICO Việt Nam
Toàn bộ quá trình từ sản xuất thiết bị đến lắp đặt hoàn thiện được thực hiện trong khoảng 14 ngày, với tinh thần làm việc khẩn trương và trách nhiệm cao nhằm bàn giao công trình đúng kế hoạch. Sau khi hoàn thành, bếp ăn đáp ứng đầy đủ các tiêu chuẩn cần thiết, sẵn sàng phục vụ hàng trăm suất ăn mỗi ngày cho cán bộ, công nhân viên.
Bếp được chia thành các khu vực chính, kết nối chặt chẽ theo luồng công việc khép kín:
Khu sơ chế
- Bàn chậu, bàn thao tác
- Máy thái thịt, xay thịt
- Máy thái rau, củ, quả
- Chậu rửa đôi, đơn
- Quạt hút khói, thùng rác di động
- Hố hút mỡ
- Kệ thanh 4 tầng
- Tủ mát 1 cánh
Khu nấu
- Bếp á đôi
- Bếp Âu 4 họng
- Bếp hầm
- Tủ cơm
- Bàn gia vị
- Tum hút mùi
- Giá trên bàn 2 tầng
Khu rửa bát, dụng cụ
- Xe chở bát đĩa bẩn
- Kệ thanh 4 tầng
- Chậu rửa đôi
- Bàn để bát bẩn
Khu ra món
- Khay chia thức ăn
- Bàn soạn chia
- Tủ lưu trữ thức ăn
- Bàn ghế inox







Dự án bếp ăn tại Công ty TNHH Hạc Trì – Phú Thọ do Quang Huy triển khai đã được bàn giao theo đúng kế hoạch đề ra, đáp ứng đầy đủ yêu cầu về kỹ thuật, an toàn vận hành và tiêu chuẩn vệ sinh thực phẩm. Dự án một lần nữa khẳng định kinh nghiệm, sự chuyên nghiệp và vị thế của Quang Huy trong lĩnh vực thiết kế – lắp đặt bếp ăn công nghiệp trọn gói.

